Scott's USAF Installations Page

All text and images created by Scott D. Murdock unless indicated otherwise.

  This work is licensed under Creative Commons Attribution 4.0 International



Uploads: Installation Maps/Plans



These are large format documents I obtained from active bases or major commands under the Freedom of Information Act (FOIA), from the National Archives and Records Administration (NARA), from the U.S. Army Corps of Engineers (CoE), or from other researchers. NARA-SW indicates NARA Southwest Region (Fort Worth); NARA-RM indicates NARA Rocky Mountain Region (Denver).

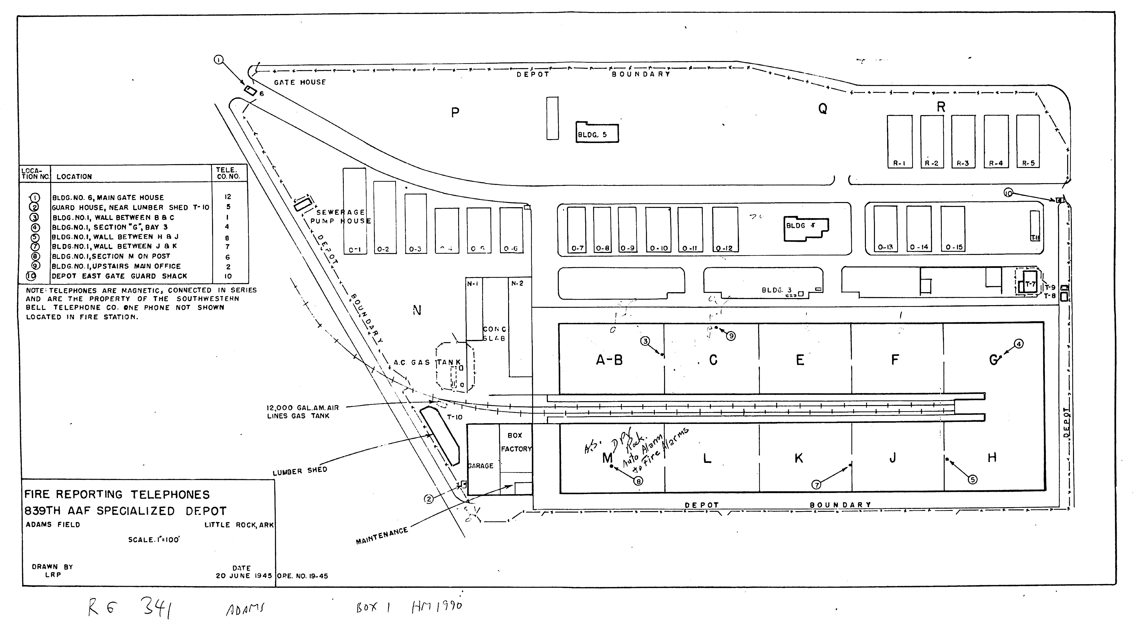
839 AAF Special Depot AR, Fire Reporting Telephones, 19450620. NARA-SW.
839 AAF Special Depot AR, 12th Ferrying Service Station, 19451002. NARA-SW.

Adams Field AR, Real Estate, 19440504. NARA-SW.

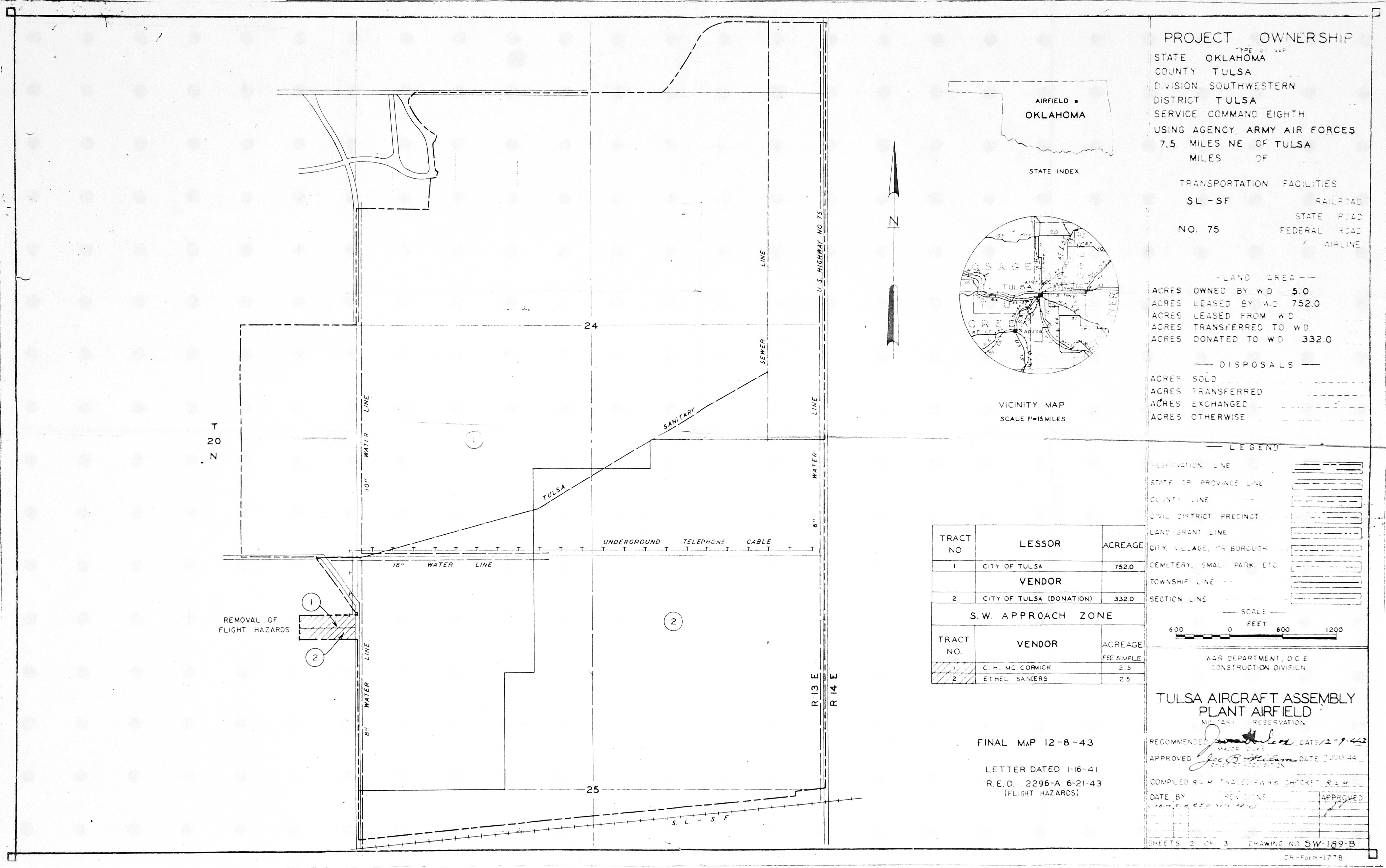
Air Force Plant No. 3 OK, Tulsa Aircraft Assembly Plant, 19440628. NARA-SW.
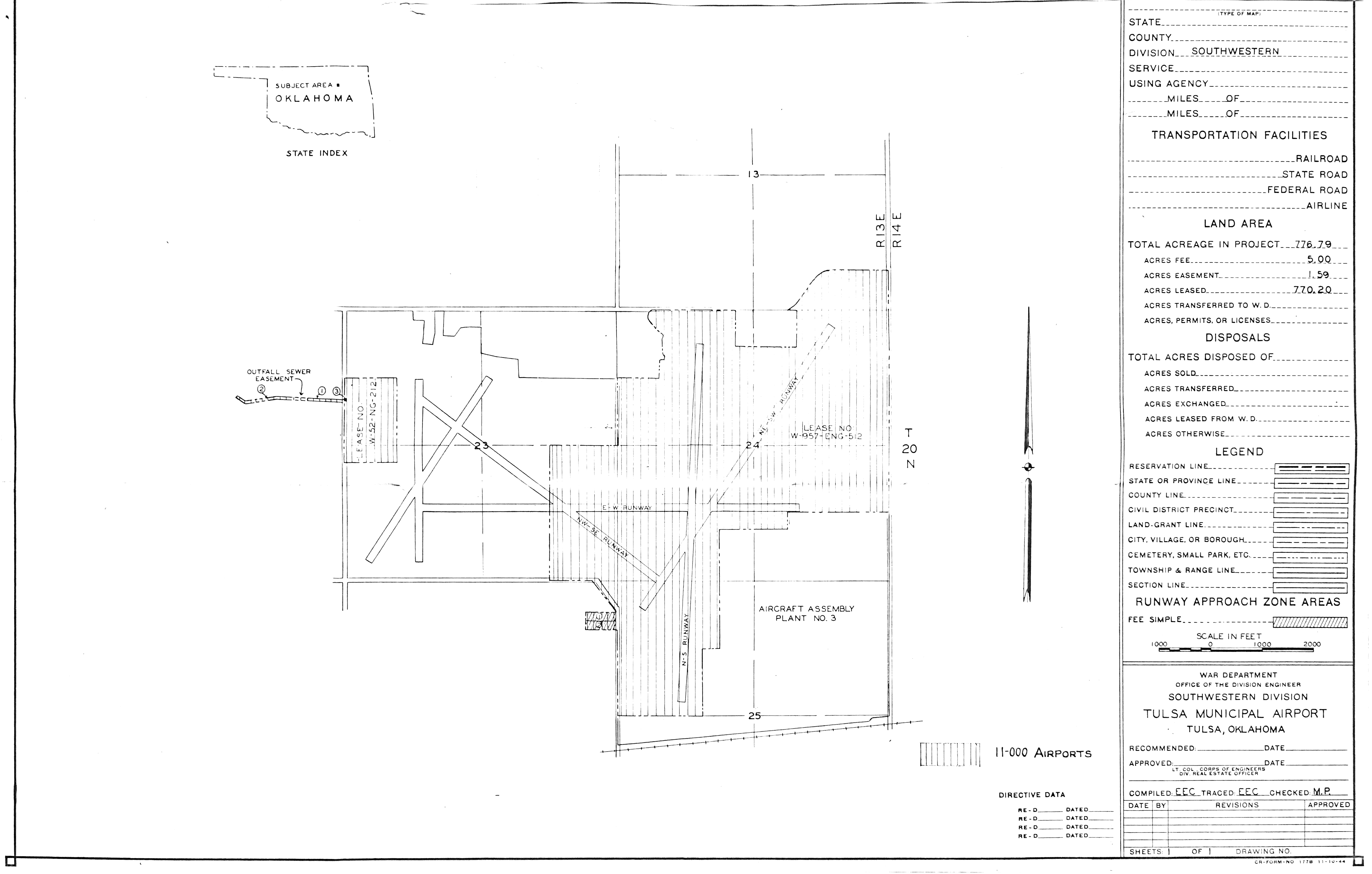
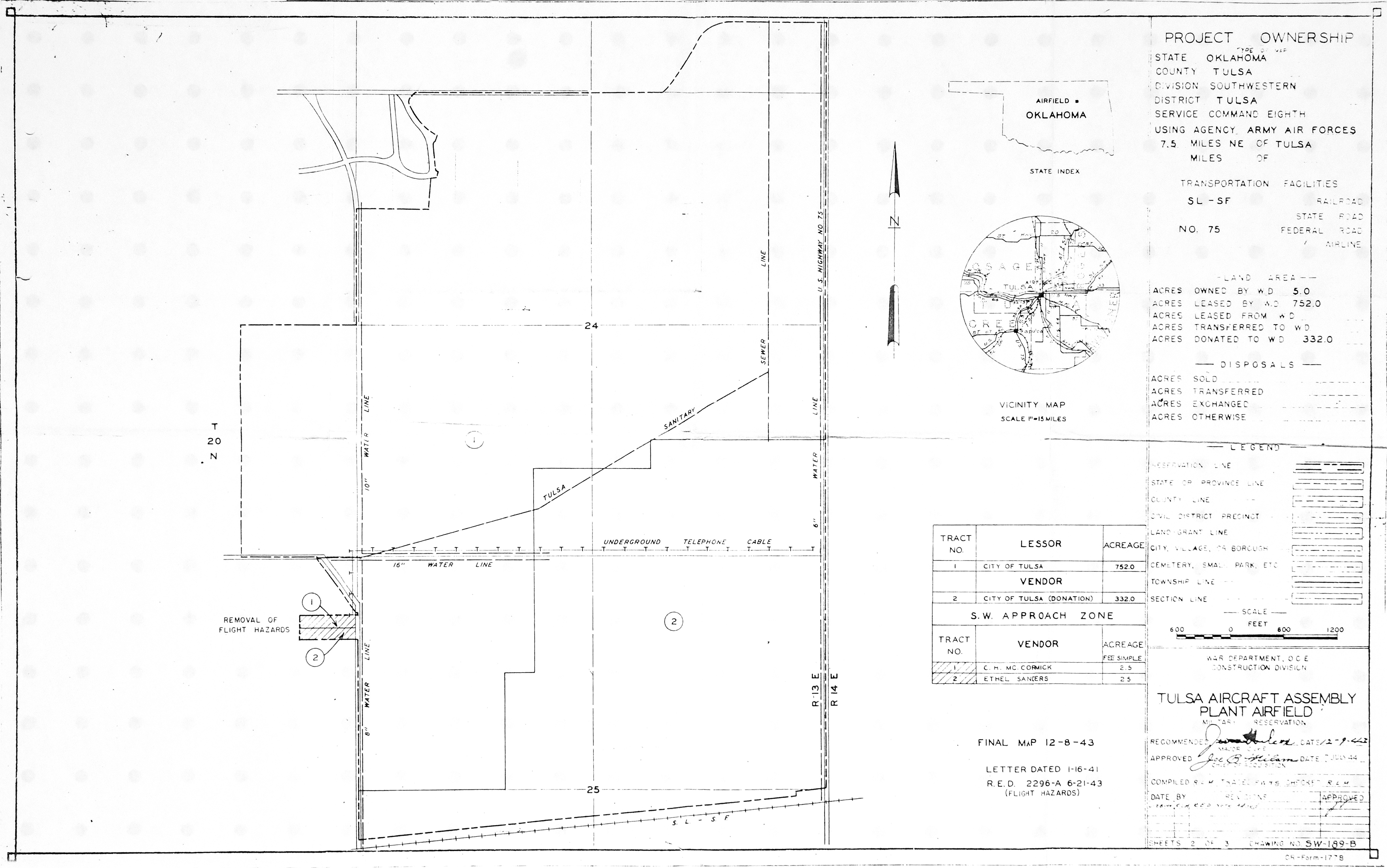
Air Force Plant No. 3 OK, Tulsa Aircraft Assembly Plant Airfield, 19431209. NARA-SW.
Air Force Plant No. 3 OK, Tulsa Aircraft Assembly Plant Airfield, 19440707. NARA-SW.

Air Force Plant No. 48 (later Newark AFB) OH, Base Map, 19961228. FOIA.

Air Force Plant No. 83 NM, Real Estate, 19850110. NARA-RM. Added May 2026

Alamogordo Bombing and Gunnery Range NM, Reservation Map, 19510910. NARA-RM. Added May 2026

Albuquerque AAFld Small Arms Range NM, Real Estate, 19540727. NARA-RM. Added May 2026

Aloe AAFld TX, Advanced Single Engine School, 19450302. NARA-SW.
Aloe AAFld TX, Basic Layout Plan, 19450702. NARA-SW.
Aloe AAFld TX, Basic Layout Plan (Annotated), 19450702. NARA-SW.
Aloe AAFld TX, Basic Layout Plan (Detail), 19450702. NARA-SW.

Altus ILS OM Anx OK, Real Estate, 19770907. FOIA.

Altus Rad Rg Stn OK, Real Estate, 19450120. NARA-SW.

Amagon Aux Fld AR, Real Estate, 1944. NARA-SW.

Andersen AFB GU, Base Plan, 19750101. FOIA.
Andersen AFB GU, Disaster Preparedness Plan, 19740725. FOIA.

Andrews AFB MD, Base Plan, 19670201. FOIA.
Andrews AFB MD, Basic Layout, 19590101. FOIA.
Andrews AFB MD, Topographic Survey (Left), 19510716. FOIA.
Andrews AFB MD, Topographic Survey (Right), 19510716. FOIA.

Arcadia RBSS LA, Real Estate, 19710210 [Traced]. FOIA.

Army Air Forces Modification Center No. 3 TX, Layout, 19440404. NARA-SW.

Army Air Forces Modification Center No. 16 OK, Plant Airfield, 19440707. NARA-SW.

Avon Park AFB FL, Building Schedule, 194509. FOIA.

Avon Park AF Range FL, USDA Kissimmee Watershed, nd. FOIA.

Barksdale AFB LA, Real Estate, 19581218. FOIA.
Barksdale AFB LA, Sonic Bomb Scoring Targets, 19450622. FOIA.
Barksdale AFB LA, Poorman Flexible Gunnery Range, 19440117. FOIA.
Barksdale AFB LA, Vicinity, 19460306. FOIA.
Barksdale AFB LA, Annexes, 19701102. FOIA.
Barksdale AFB LA, Off-Base Installations, 19570917. FOIA.

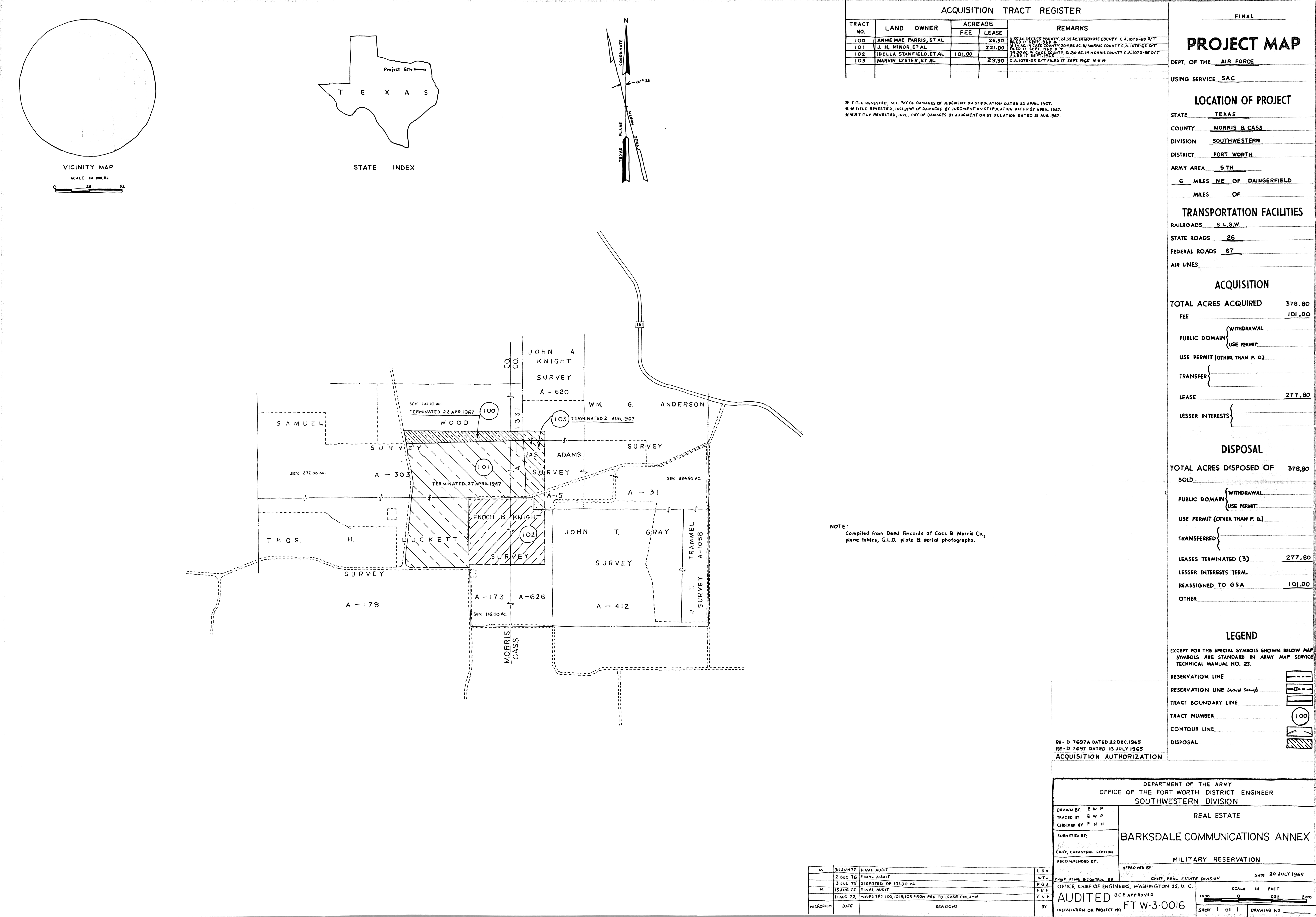
Barksdale Comms Annex TX, Real Estate, 19770630 [Traced]. FOIA.

Barksdale Family Housing Annex LA, Ownership Map, 19580128. FOIA.

Barksdale Fan Marker Annex LA, Real Estate, 19580205. FOIA.

Barksdale Horizon Light LA, Ownership Map, 19450913. FOIA.

Barksdale ILS OM Annex LA, Ownership Map, 19460204. FOIA.

Barksdale Radio Beacon Annex LA, Real Estate, 19440317. FOIA.
Barksdale Radio Beacon Annex LA, Real Estate, 19600927. FOIA.

Barksdale Radar Bomb Scoring Site TX, Real Estate, 19690120 [Traced]. FOIA.

Barksdale TVOR Annex LA, Real Estate, 19610329. FOIA.

Beale AFB CA, Area Plan, 19560224. FOIA.

Belleville AFS IL, Facilities, 19581001. RP.
Belleville AFS IL, Real Estate, 19570430. FOIA.
Belleville AFS IL, Real Estate, 19660518. FOIA.
Belleville AFS IL, Turkey Hill, 19581001. FOIA.

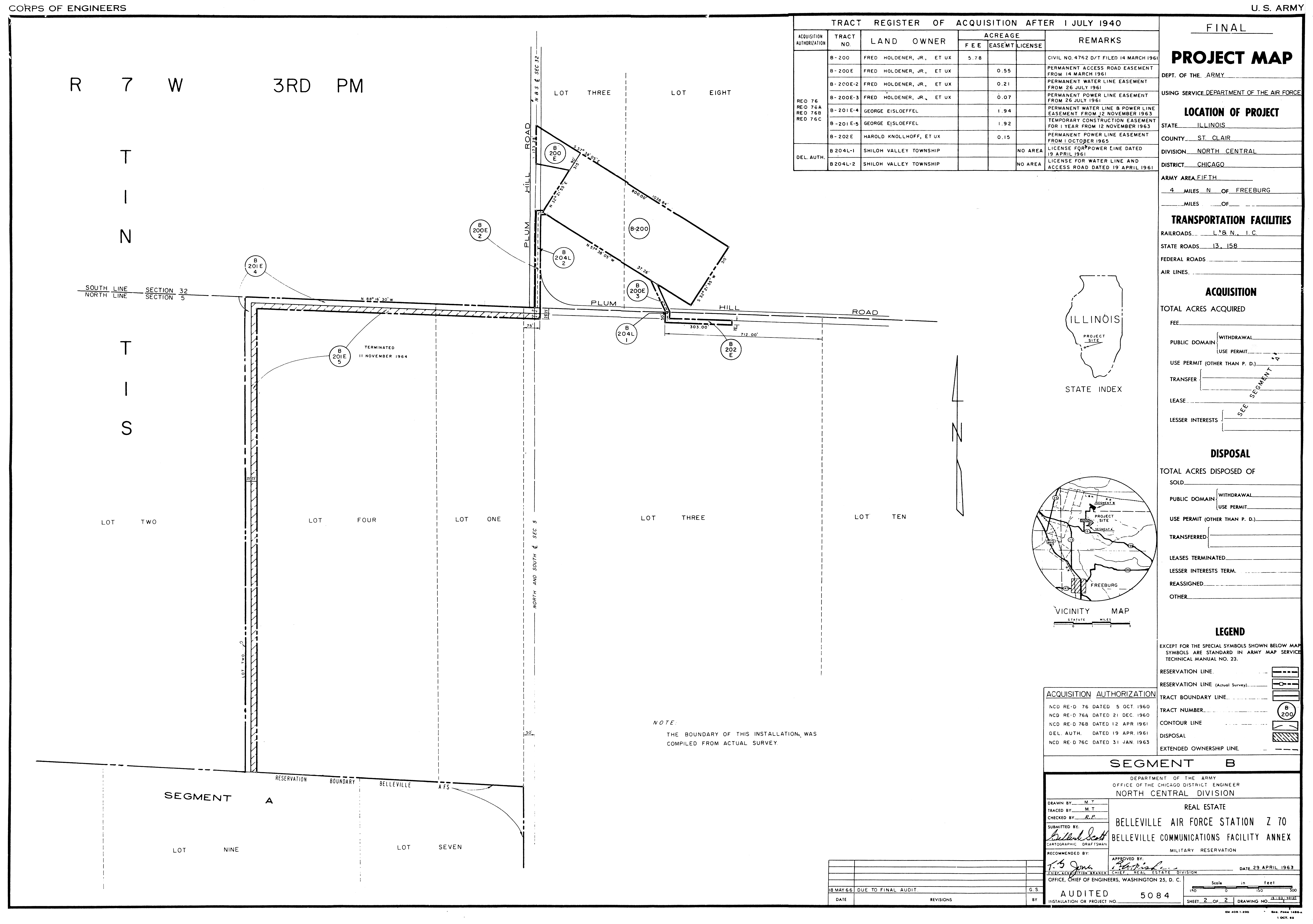
Belleville Communications Annex IL, Real Estate, 19660518. FOIA.
Belleville Communications Annex IL, Site Plan, 19620424. FOIA.

Bellows AFB HI, Basic Layout, 19580130. FOIA.
Bellows AFB HI, General Plan, 19450519. FOIA.

Bergstrom AFB TX, Real Estate, 19690207. NARA-SW.

Biggers Aux Fld AR, Real Estate, 19450423. NARA-SW.

Biggs AFB TX, Real Estate, 19670613. NARA-SW.

Blackland AF Aux Fld TX, Real Estate, 19470506. NARA-SW.

Blackland Aux Fld No. 4 TX, Real Estate, 19470506. NARA-SW.

Blair Aux Fld OK, Real Estate, 19470502. NARA-SW.

Bombay Hook Range DE, General Plan, 19450420. FOIA.

Brandywine GLOBECOM Annex MD, Site Plan, 19770519. FOIA.

Breckenridge Aux Fld OK, Real Estate, 19470515. NARA-SW.

Brogden ILS OM Annex NC, Site Plan, 19600706. FOIA.

Brooks AFB TX, Real Estate, 19490404. NARA-SW.
Brooks AFB TX, Regional Map, 19460520. NARA-SW.
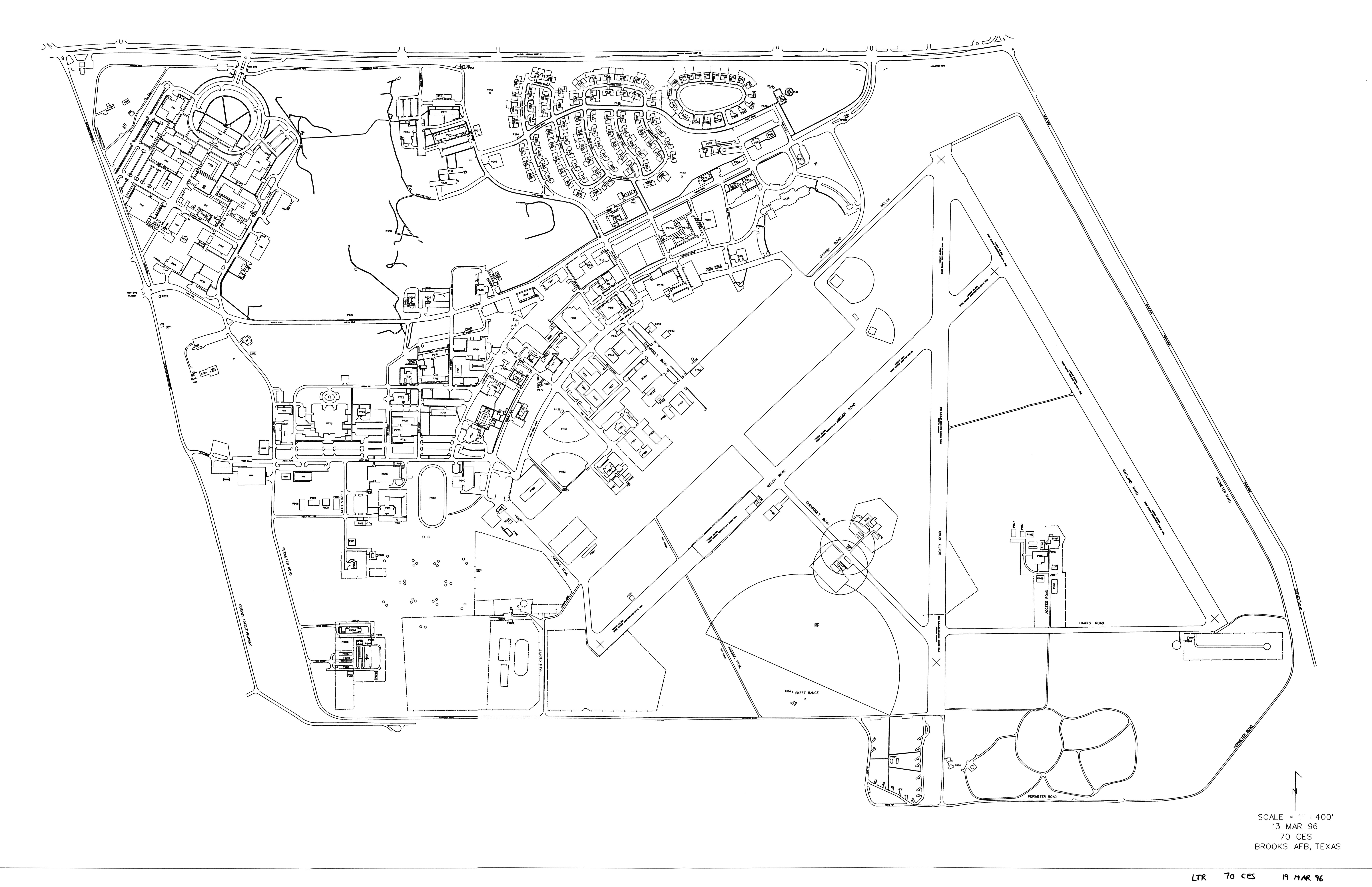
Brooks AFB TX, unnamed, 19960313. FOIA.

Brooks Family Housing Annex TX, 19630703. NARA-SW.

Broome AF Aux Fld TX, Real Estate, 19520201. FOIA.

Brownsville AAB TX, Real Estate, 19450724. NARA-SW.
Brownsville AAB TX, Rio Grande IAP, 19480316. NARA-SW.

Bryan AFB TX, Building Area, 19560523. NARA-SW.

Call Field TX, Property Map, nd. NARA-SW.

Camp Cushing TX, Real Estate, 19491114. NARA-SW.

Camp Luna, Sewage Easement, 19580630. NARA-RM. Added May 2026

Camp Mystic TX, Rest Camp for AAF, 19461125. NARA-SW.

Canada Slave Station NM, Real Estate, 19640615. NARA-RM. Added May 2026

Cannon AFB NM, Regional Map, 19460403. NARA-SW.

Canyon Lake Recrn Anx TX, Real Estate, 19690721. FOIA.

Cape Canaveral AFS FL, Plot Plan, 19520710. FOIA.

Carlsbad AAFld and PBRs NM, Real Estate, 19450504.

Carlsbad AAFld NM, Building Index, 194312. NARA-RM. Added May 2026
Carlsbad AAFld NM, Basic Layout Plan, 194503. NARA-RM. Added May 2026
Carlsbad AAFld NM, Building Number Map, 19450718. NARA-RM. Added May 2026

Carlsbad AF POL Station NM, PLot Plan Area Layout, 195412. NARA-RM. Added May 2026
Carlsbad AF POL Station NM, Real Estate, 19800201. NARA-RM. Added May 2026

Carlsbad Aux Fld No. 1 NM, Real Estate, 19430302. NARA-RM. Added May 2026
Carlsbad Aux Fld No. 1 NM, Real Estate, 19450512. NARA-RM. Added May 2026

Carlsbad Radio Range NM, Real Estate, 19450514. NARA-RM. Added May 2026

Carrizo Springs Gap Filler Annex TX, Real Estate, 19560917. NARA-SW.

Carswell AFB TX, Real Estate, 19521203. NARA-SW.

Carswell Comms Rcvr TX, Insert Ordnance Area, 19521120. NARA-SW.

Castroville Aux Fld TX, Development, nd. NARA-SW.

Charleston AFB SC, Basic Layout, 19580307. FOIA.

Charleston AFS ME, Topographic Survey, 19601206. CoE.

Chennault AFB LA, Basic Layout, 19450611. NARA-SW.
Chennault AFB LA, Basic Layout, 19570731. NARA-SW.
Chennault AFB LA, General Plan, 19550628. NARA-SW.

Childress AAFld TX, Real Estate, 19431213.

Childress Radio Range TX, Location, 194311. NARA-SW.

Cloudcroft Satellite Tracking Anx NM, Real Estate, 19561003. NARA-RM. Added May 2026
Cloudcroft Satellite Tracking Anx NM, Real Estate, 19620531. NARA-RM. Added May 2026

Clovis Civilian War Housing NM, Victory Housing Property Line Map, 19430401. NARA-RM. Added May 2026

Clovis Ground Gunnery Range No. 2 NM, Real Estate, 19440819. NARA-RM. Added May 2026

Clovis Radio Range and ILS Outer Marker, Real Estate, 19450216. NARA-RM. Added May 2026

Clovis Radio Range NM, Project Ownership Map, 19450307. NARA-RM. Added May 2026

Cocoa Beach Comms Anx 1 and 2 FL, Layout Plan, 19951001. FOIA.

Columbus AFB MS, Detail Map, 195405. FOIA.

Cross City AAFld FL, Layout Plan, 194302. CoE.

Daingerfield GFA TX, Topography, 195605. NARA-SW.
Daingerfield GFA TX, Topography, 19590204. NARA-SW.

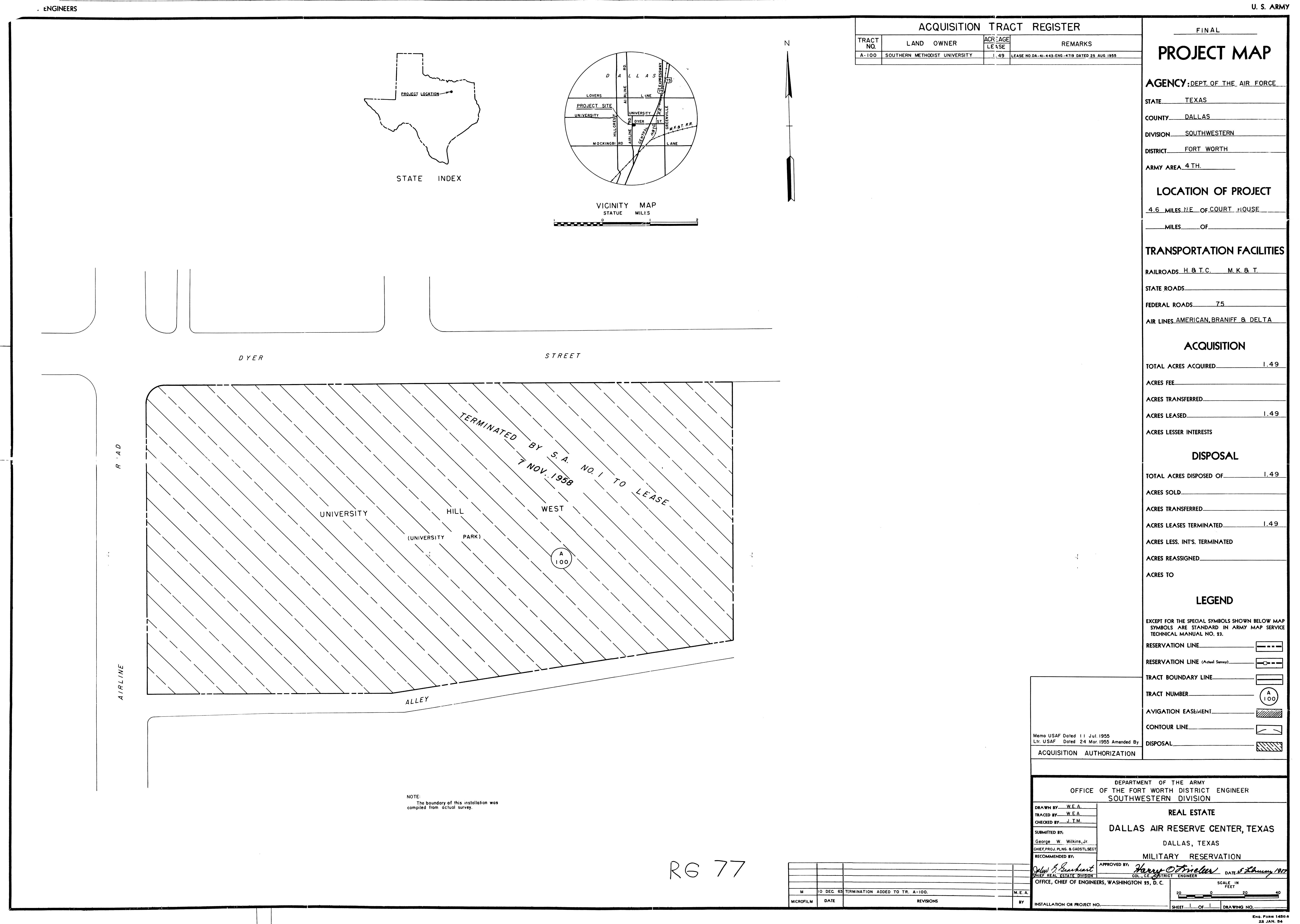
Dallas Air Reserve Center TX, Real Estate, 19631210. NARA-SW.

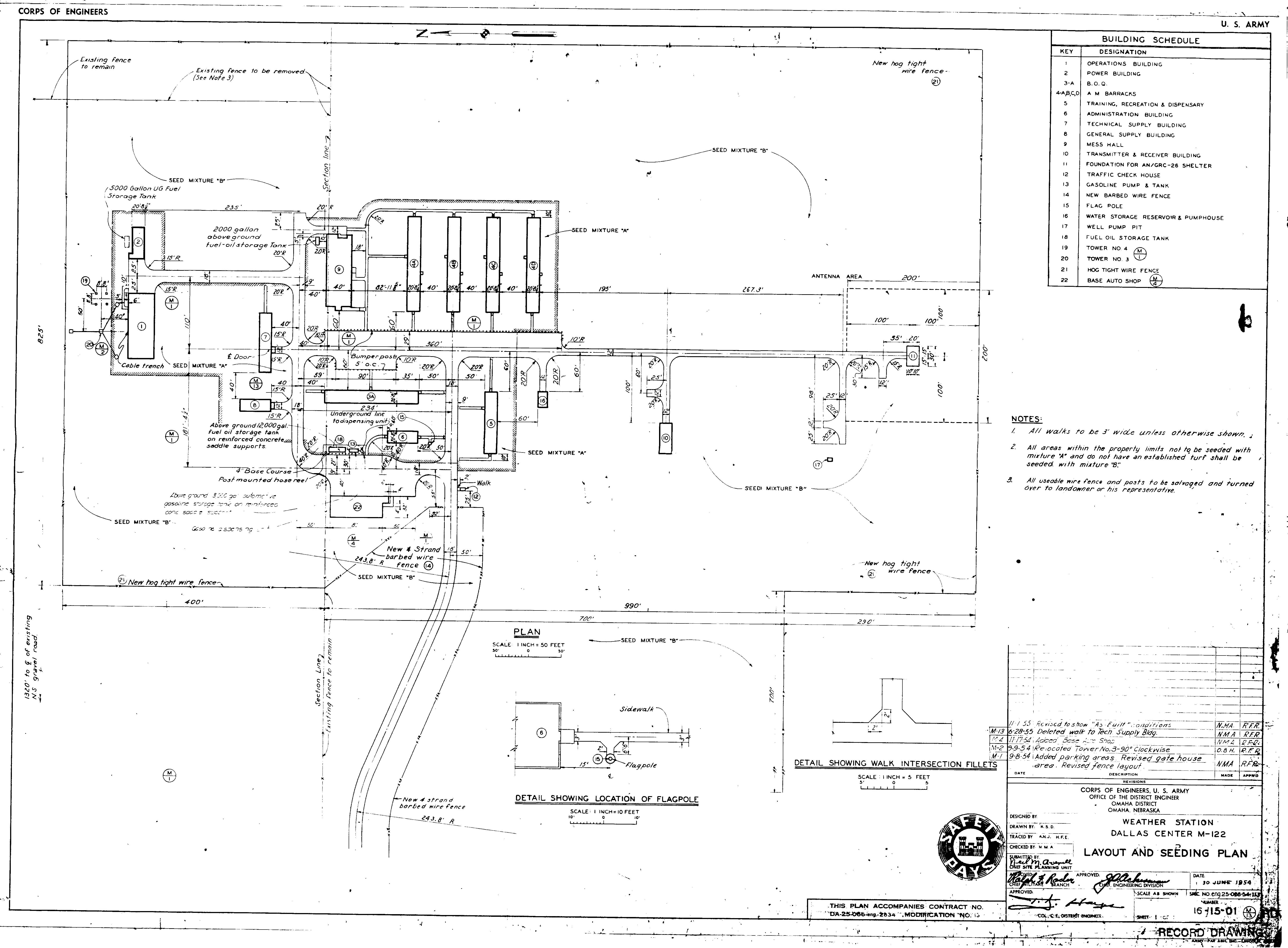
Dallas Center AFS IA, Layout-Seeding Plan, 19551101. CoE.
Dallas Center AFS IA, Real Estate, 19580424. CoE.
Dallas Center AFS IA, Water-Sewer Layout Plan, 19551101. CoE.

Davidson Aux Fld OK, Ownership Map, 19470501. NARA-SW.

Delhi GFA LA, Real Estate 1, 19570611. NARA-SW.
Delhi GFA LA, Real Estate 2, 19570611. NARA-SW.

Deming AAFld NM, Obstruction Map, 19421130. NARA-RM. Added May 2026
Deming AAFld NM, Layout Map, 19440101. NARA-RM. Added May 2026
Deming AAFld NM, Real Estate, 19450719. NARA-RM. Added May 2026

Deming Aux Fld No. 1 NM, Auxiliary Landing Field No. 1, nd. NARA-RM. Added May 2026
Deming Aux Fld No. 1 NM, Real Estate, 19431120. NARA-RM. Added May 2026

Deming Aux Fld No. 2 NM, Auxiliary Landing Field No. 2, nd. NARA-RM. Added May 2026
Deming Aux Fld No. 2 NM, Real Estate, 19431122. NARA-RM. Added May 2026
Deming Aux Fld No. 2 NM, Real Estate, 19450411. NARA-RM. Added May 2026
Deming Aux Fld No. 2 NM, Real Estate, 19490425. NARA-RM. Added May 2026

DeRidder AAB LA, Real Estate, 19490729. NARA-SW.

Dickinson RBSS ND, Site Layout, 19880125. FOIA.
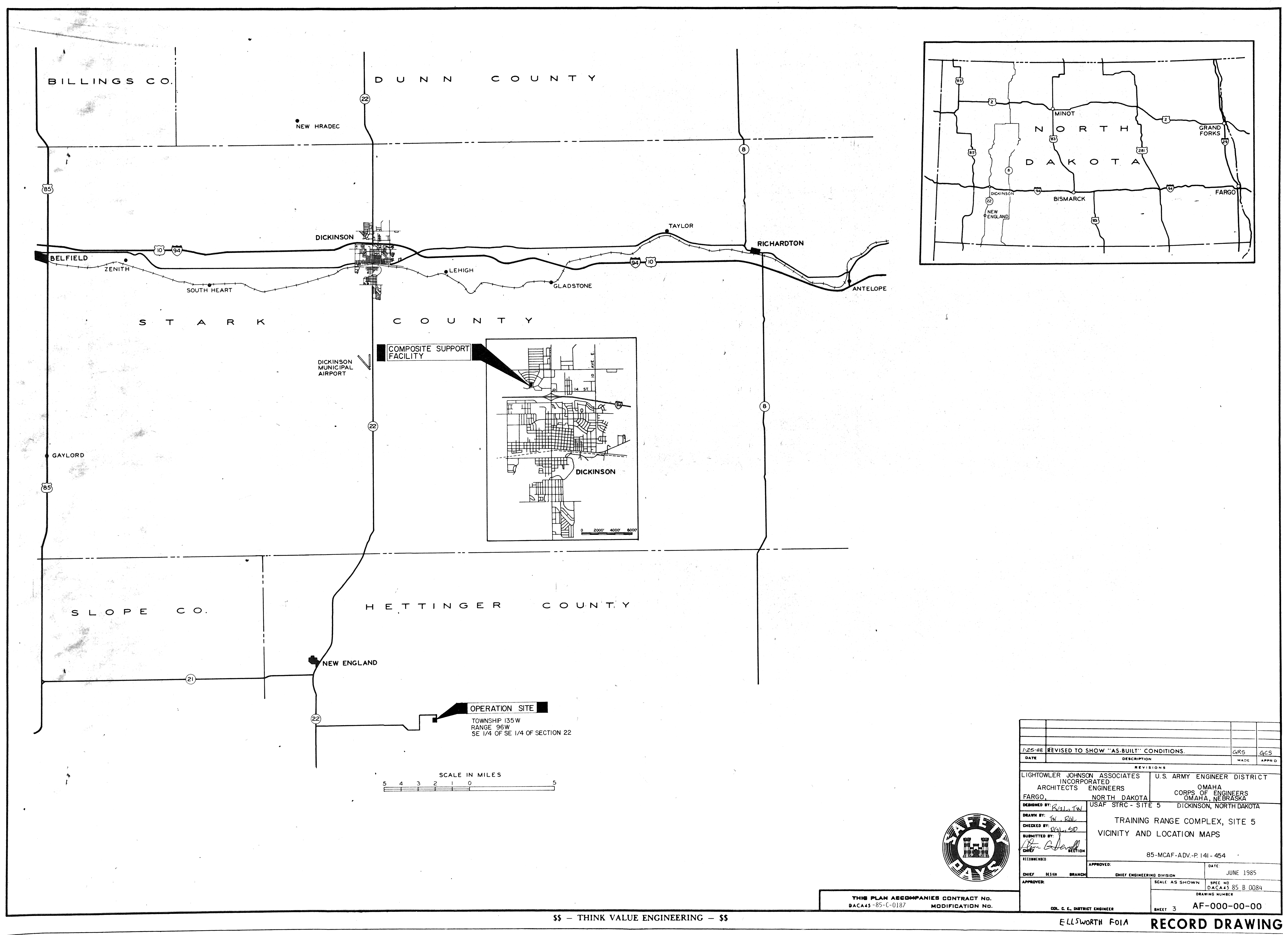
Dickinson RBSS ND, Vicinity Location Maps, 19880125. FOIA.

Dodd Field TX, USAR Site, 195902. NARA-SW.

Douglas Annex WY, Vicinity Map, nd. FOIA.

Dover AFB DE, Obstruction Plan, 19421221. FOIA.
Dover AFB DE, Roads and Aprons, 19440610. FOIA.

Dover Hipwell Woods DE, Record Plan, 19440407. FOIA.

Dow AFB ME, Plot Plan, 19490331. CoE.

Drummond Aux Fld OK, Real Estate, 19470515. NARA-SW.

Duncanville AFS TX, Utility Plan, 19570511. NARA-SW.

Dyess AFB TX, Off-Base Installations, 19690331. FOIA.
Dyess AFB TX, Land Utilization, 19720101. FOIA.
Dyess AFB TX, Layout Plan, 19450514. NARA-SW.
Dyess AFB TX, Real Estate, 19611130. FOIA.

Dyess Comms Rcvr and ILS Annexes TX, Real Estate, 19761020. FOIA.

Dyess ILS MM Anx 1 and MM Anx 2, Cable Diagram, 19700311. FOIA.

Dyess ILS OM Anx TX, Electrical Utility, 19651208. FOIA.
Dyess ILS OM Anx TX, Real Estate, 19610916. FOIA.
Dyess ILS OM Anx TX, Real Estate, 19720911. NARA-SW.

Dyess Recrn Anx 2 TX, Real Estate, 19580516. NARA-SW.

Dyess Small Arms Range Annex TX, Camp Barkeley NG Rg, 19701117. FOIA.
Camp Barkeley TX, Segments A and B, 19440424. NARA-SW.
Camp Barkeley TX, Segments C, D, and E, 19440420. NARA-SW.

Eagle Pass AAFld TX, Basic Layout, 196503. NARA-SW.

Eagle Pass Aux Fld 4 TX, Real Estate, 19440320. NARA-SW.

Edinburg Aux Fld TX, Real Estate, 19470723. NARA-SW.

Edward Gary Rad Rg Anx TX, Electrical Distribution, 19490210. NARA-SW.
Edward Gary Rad Rg Anx TX, Real Estate, 19571004. NARA-SW.

El Paso GFA TX, Real Estate, 19590203. NARA-SW.

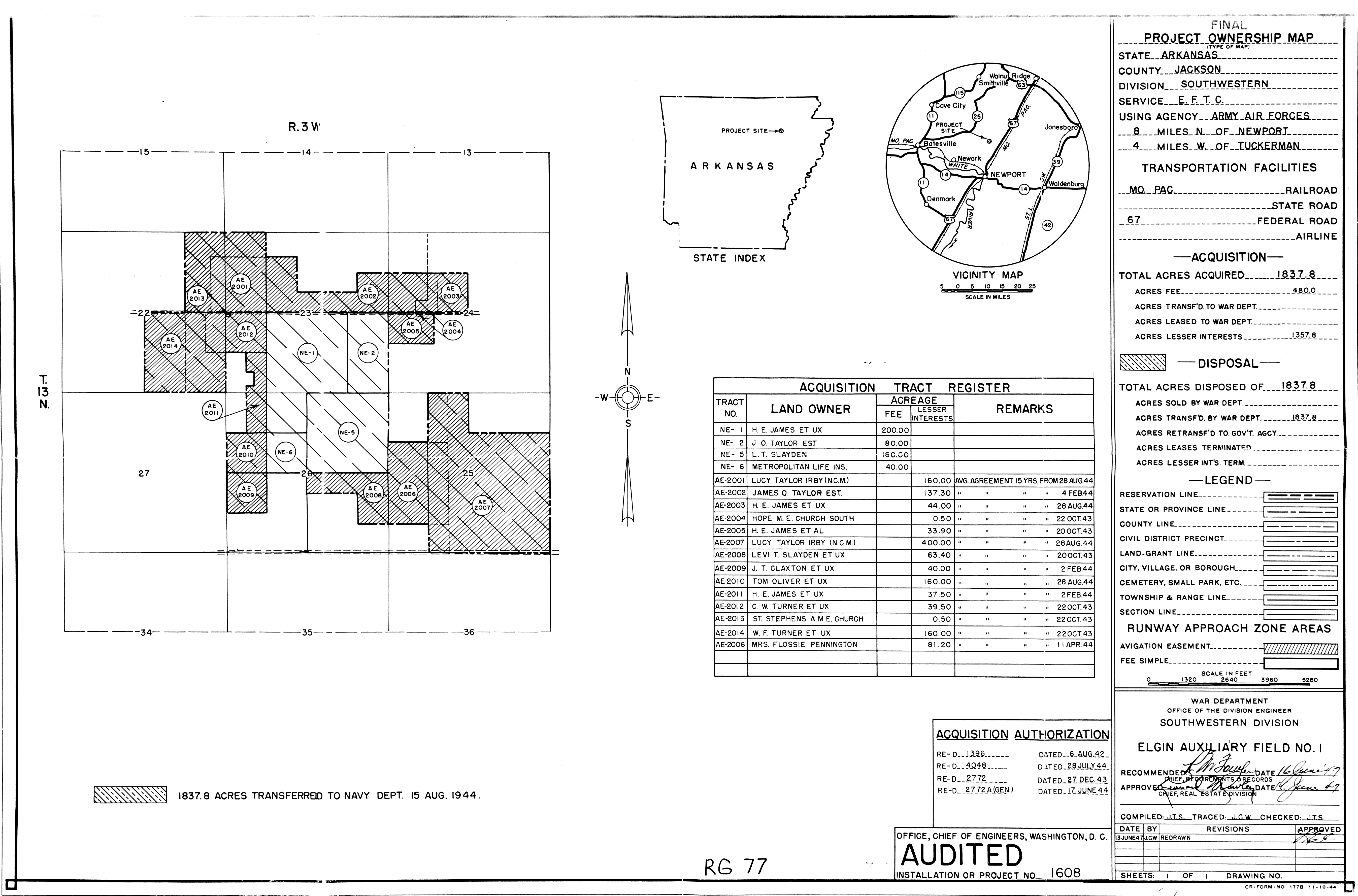
Elgin Aux Fld AR, Ownership Map, 19470616. NARA-SW.

Ellington Field Gunnery Rg TX, Real Estate, 19460201. NARA-SW.

Ellington Rad Rg 2 TX, Real Estate, 19460201. NARA-SW.

Ellsworth AFB SD, Base Plan 1-of-20, 19750101. FOIA.
Ellsworth AFB SD, Base Plan 2-of-20, 19750101. FOIA.
Ellsworth AFB SD, General Layout, 19420309. FOIA.

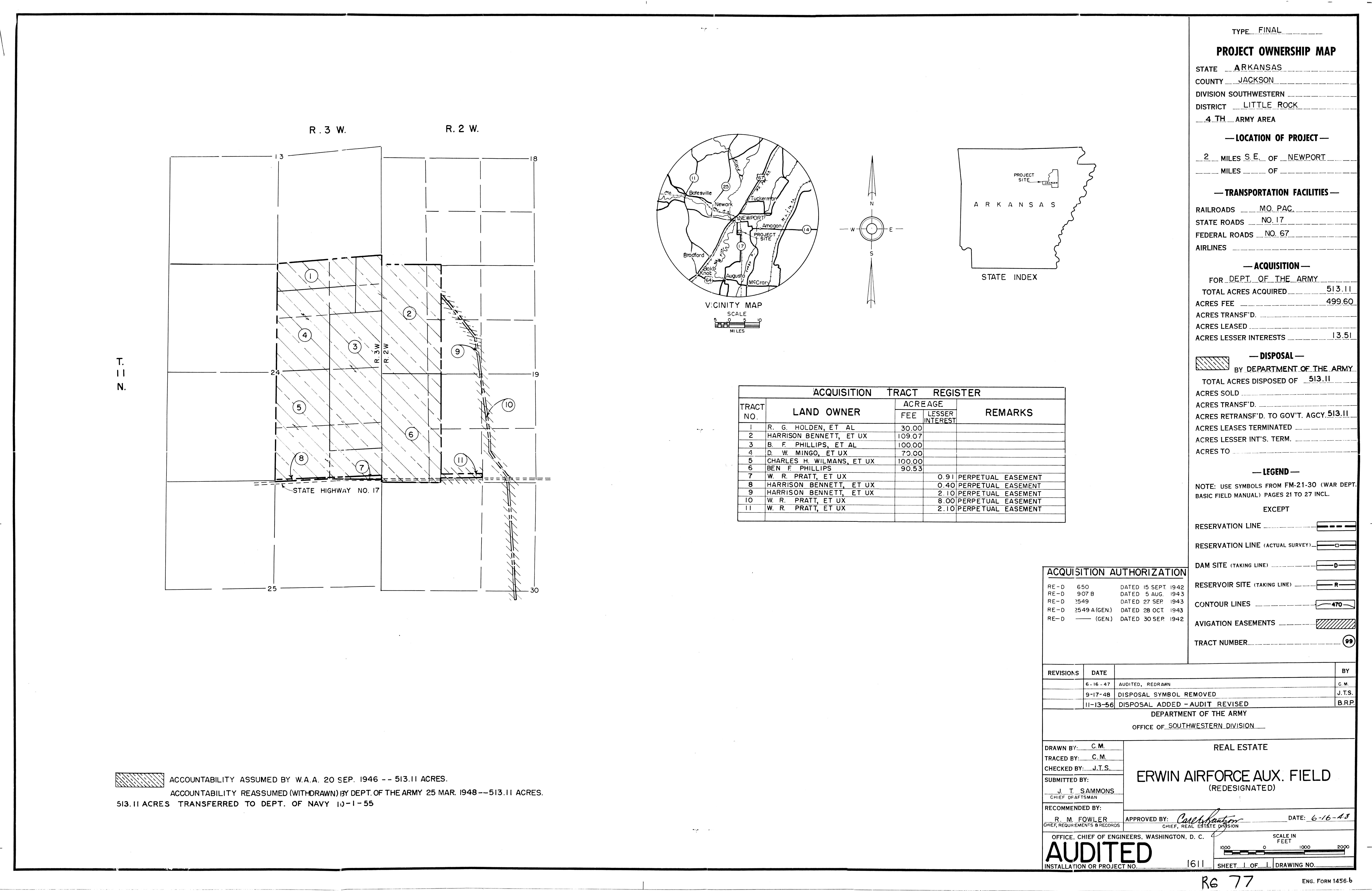
Erwin AF Aux Fld AR, Real Estate, 19561113. NARA-SW.

Ethan Allen AFB VT, Building Directory, 1953. CoE.

F.E. Warren AFB WY, Map of Fort D.A. Russell, nd. FOIA.
F.E. Warren AFB WY, Master Plan, 195201. FOIA.
F.E. Warren AFB WY, Proposed Water Pipe Line, 19090723. FOIA.
F.E. Warren AFB WY, Regional Map, 196208. FOIA.

Fairchild AFB WA, Control Reference Monuments, 19660514. FOIA.

Fairmont AAFld NE, Demolition Site Plan, 19470128. RP.

Forestport Test Anx NY, Plot Plan, 19790917. FOIA.

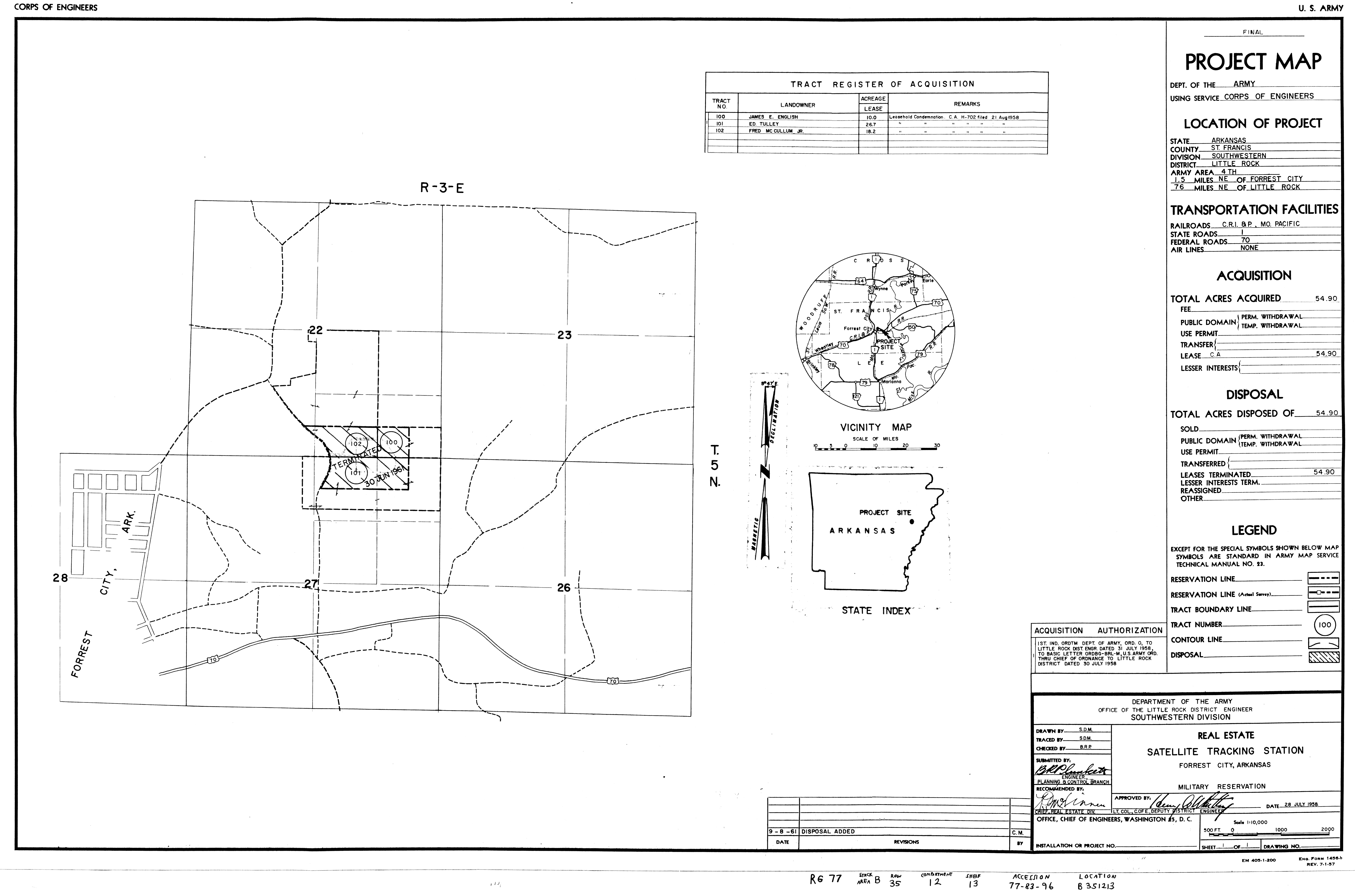
Forrest City Satellite Tracking Station AR, Real Estate, 19610908. NARA-SW.

Forsyth Tng Site MT, Site Plan, 198309. FOIA.

Fort Clark TX, unnamed, c.1944

Fort Hood TX, Real Estate, 19630711. NARA-SW.

Fort McIntosh Fam Hsg Anx TX, Auxiliary Installation, 19660323. NARA-SW.
Fort McIntosh Fam Hsg Anx TX, Real Estate, 19641009. NARA-SW.

Fort Reno Aux Fld OK, Real Estate, 19480922. NARA-SW.

Fort Ringgold TX, Real Estate, 19480330. NARA-SW.

Fort Sam Houston TX, Military Reservation, 194701. NARA-SW
Fort Sam Houston TX, (Legend Detail), 194701. NARA-SW
Fort Sam Houston TX, (Dodd Field Detail), 194701. NARA-SW
Fort Sam Houston TX, (San Antonio AFS Detail), 194701. NARA-SW

Foster AFB TX, Real Estate, 19590423. NARA-SW.

Gerstner Field LA, Property Map (Plain), 19190101
Gerstner Field LA, Property Map (Annotated), 19190101

Gnome Project NM, Real Estate, 19660812. NARA-RM. Added May 2026

Gonzales Aux Fld 1 TX, Real Estate, 19440805. NARA-SW.

Goodfellow AFB TX, Real Estate, 19570214. NARA-SW.
Goodfellow AFB TX, Reservation Map, 19431004. FOIA.
Goodfellow AFB TX, Roads Sidewalks Parking, 196501. FOIA.

Goodfellow Aux FLd 3 TX, Real Estate, 19450303. FOIA.

Goodfellow Light Beacons TX, Real Estate, 19450209. FOIA.

Goodfellow Radio Range TX, Real Estate, 19520201. FOIA.
Goodfellow Radio Range TX, Location, 197307. FOIA.

Grand Forks AFB ND, Site Plan, 19580529. FOIA.

Greenville AFB MS, Basic Layout, 19450515. CoE.

Greenville Aux Fld Greenland MS, To Accompany Lease, 1942. CoE.

Greenville Aux Fld Redleaf AR, To Accompany Lease, 1942. CoE.

Greenville Aux Fld Trail Lake MS, To Accompany Lease, 1942. CoE.

Greenville Muni Aprt, To Accompany Lease, 1941. CoE.

Griffiss AFB NY, Base Comp Plan 1, 19940930. FOIA.
Griffiss AFB NY, Base Comp Plan 2, 19940930. FOIA.
Griffiss AFB NY, Off-Base Sites, 19940930. FOIA.

Guadalupe AF Range NM, Real Estate, 19470619. NARA-RM. Added May 2026
Guadalupe AF Range NM, Real Estate, 19520604. NARA-RM. Added May 2026
Guadalupe AF Range NM, Real Estate, 195607. NARA-RM. Added May 2026
Guadalupe AF Range NM, Real Estate, 19831021. NARA-RM. Added May 2026

Gunter AFB AL, Base Plan, 19681118. FOIA.

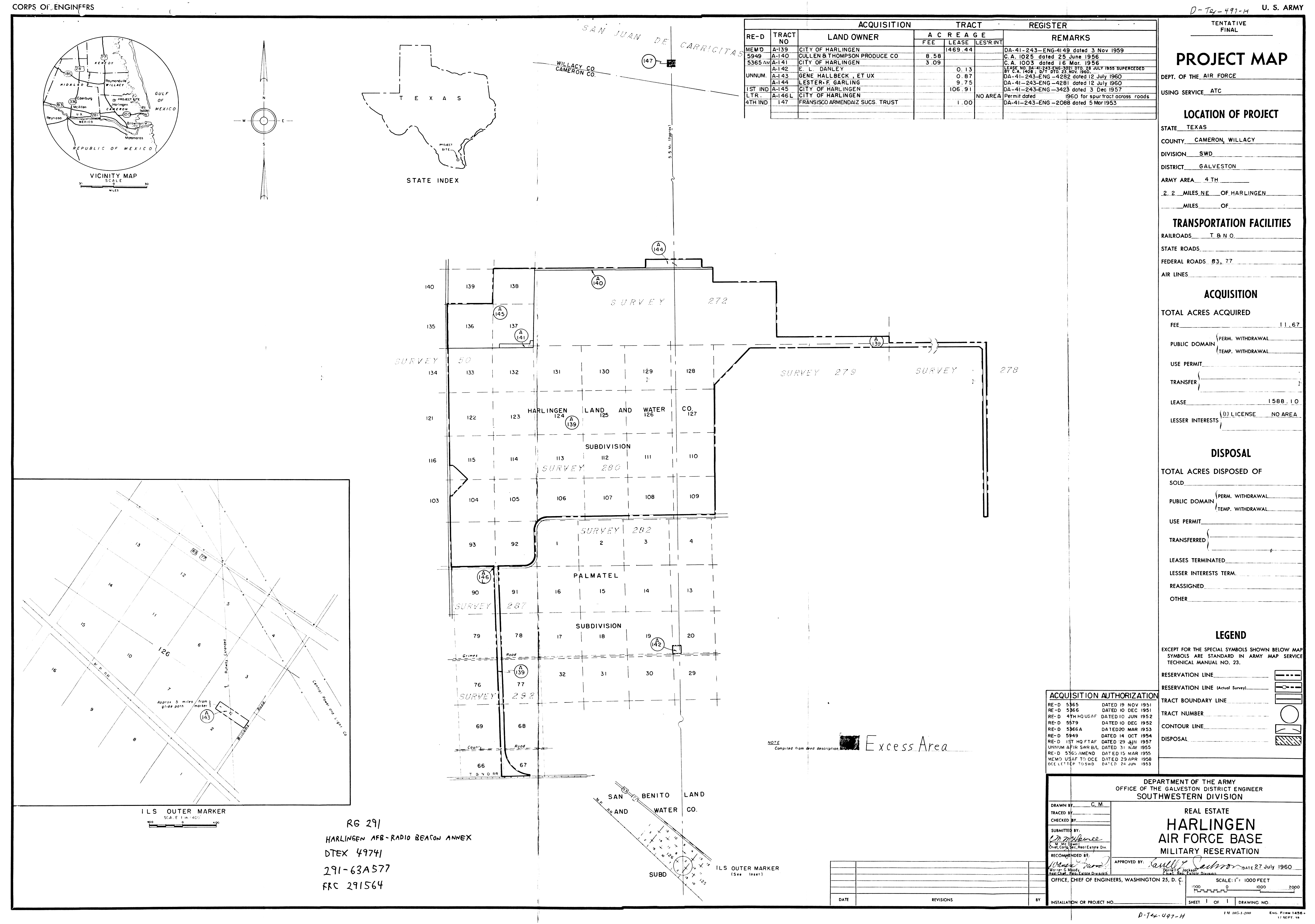
Harlingen AFB TX, Real EState, 19600727. NARA-SW.

Hawes Aux Fld CA, Site Map, 19660914

Hensley Field TX, Real Estate, 19490523. NARA-SW.

Hicks Field TX, unnamed, nd. NARA-SW.

Hobbs AFB NM, Auxiliary, 195812. FOIA.
Hobbs AFB NM, Buildings Locations, 19440821. FOIA.
Hobbs AFB NM, Reservation Map, 194304. FOIA.

Holloman Four Bits Anx NM, Real Estate, 19601011. NARA-RM. Added May 2026
Holloman Four Bits Anx NM, Real Estate, 19610411. NARA-RM. Added May 2026
Holloman Four Bits Anx NM, Real Estate, 19681016. NARA-RM. Added May 2026

Holloman Instrumentation Site NM, Real Estate, 19570326. NARA-RM. Added May 2026

Hondo AB TX, Basic Layout, 19450731. NARA-SW.
Hondo AB TX, Basic Layout (Index detail), 19450731. NARA-SW.
Hondo AB TX, Basic Layout (Layout detail), 19450731. NARA-SW.
Hondo AB TX, Navigation School, 19430222. NARA-SW.
Hondo AB TX, Real Estate, 19450322. NARA-SW.

Hondo Housing Annex TX, Sewer and Water Systems, 19521124. NARA-SW.

Hondo Radio Range TX, Real Estate, nd. NARA-SW.

Hoskins Mound Bombing Range TX, Real Estate, 19460201. NARA-SW.

Howard Hughes Airport TX, Ownership Map, 19460201. NARA-SW.

Interior Radar Bomb Scoring Site SD, Hurley Butte RBS, 19670214. FOIA.

James Connally AFB TX, Annexes, 19650831. NARA-SW.

James Connally ILS OM Anx TX, Real Estate, 19590302

James Connally Light Annexes TX, Install Poles, 195907. NARA-SW.

Johnston Atoll AFB UMI, Base Plan, 19770426. FOIA.
Johnston Atoll AFB UMI, unnamed, 196201. FOIA.

Jupiter Msl Data Coll Anx FL, Layout Plan, 19851001. FOIA.

Kaala AFS HI, Install Fire Pump, 19771018. FOIA.

Kaena Point Satellite Trckg Stn HI, Base Plan 1, 19770415. FOIA.
Kaena Point Satellite Trckg Stn HI, Base Plan 2, 19770415. FOIA.
Kaena Point Satellite Trckg Stn HI, Base Plan 3, 19770415. FOIA.

Keesler AFB MS, Reservation Map, 19440214. FOIA.

Kegelman AF Aux Fld OK, Revised Layout, 19440828. FOIA.

Kelly AFB TX, Topography, 1918. FOIA.
Kelly AFB TX, Vicinity Map, c.1945. FOIA.

Kelly Homes TX, Family Housing, nd. NARA-SW.

Kingsville NAAS TX, General Development Plan, 19630630. NARA-SW.

Kipapa Gulch AVGAS Storage HI, Plot Plan, nd. FOIA.

Kirtland AFB NM, Radio Remote Control Cable, 19410707. NARA-RM. Added May 2026
Kirtland AFB NM, Building Numbers, 19450821. NARA-RM. Added May 2026
Kirtland AFB NM, Master Plan, nd. NARA-RM. Added May 2026

Kirtland FM Radio Anx NM, AC-W FM Relay Station, 19540325. NARA-RM. Added May 2026
Kirtland FM Radio Anx NM, Real Estate, 19600531. NARA-RM. Added May 2026

Kirtland Radar Reflectors NM, Reflector Stations, 19570613. NARA-RM. Added May 2026
Kirtland Radar Reflectors NM, Real Estate, 19820520. NARA-RM. Added May 2026
Kirtland Radar Reflectors NM, Reflector Stations, nd. NARA-RM. Added May 2026

Kisatchie Precision Bombing Range No. 1 LA, Real Estate, 19491020. FOIA.

Kisatchie Precision Bombing Range No. 2 LA, Real Estate, 19491020. FOIA.

Kisatchie Precision Bombing Range No. 3 LA, Real Estate, 19491020. FOIA.

Kisatchie Tent Camp Site LA, Real Estate, 19491020. FOIA.

Kokee AFS HI, Basic Layout, 19770426. FOIA.
Kokee AFS HI, Prelim Master Plan, 19610629. FOIA.

Lackland AFB TX, Base Plan, 19730108. FOIA.

Lackland Training Anx TX, Base Plan, 19690101. FOIA.
Lackland Training Anx TX, Boundary Map, 19621205. NARA-SW.
Medina Base TX, Real Estate, 19621109. NARA-SW.

Laguna Madre Field TX, Development Plan, 19600303. NARA-SW.

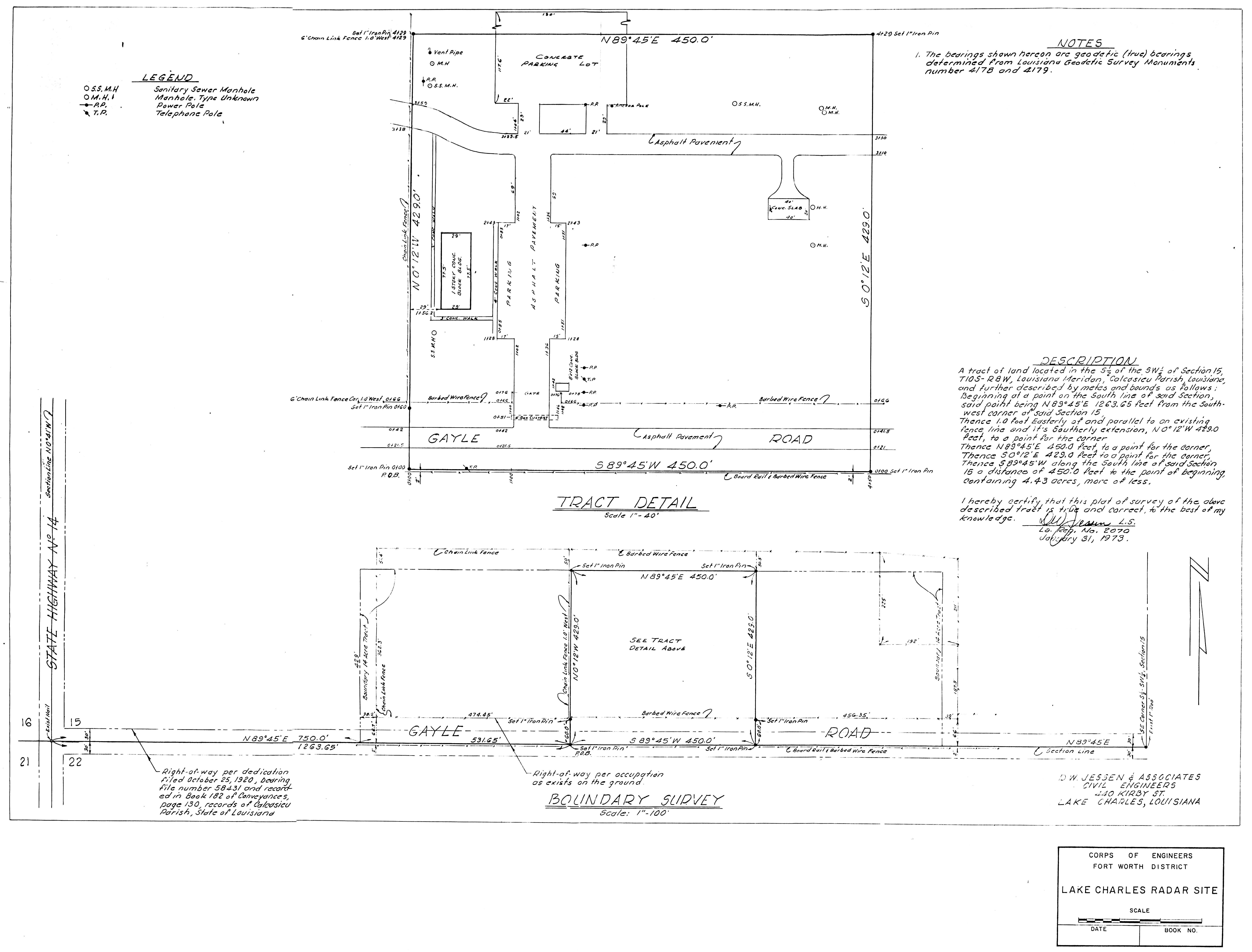
Lake Charles AFS LA, Radar Site, 19730131. FOIA.
Lake Charles AFS LA, Real Estate, 19630226. FOIA.
Lake Charles AFS LA, Survey FAA, 19900328. FOIA.

Lake Kickapoo NAVSPASUR Transmitter TX, unnamed, 19640410. NARA-SW.

Lake McQueeney Recrn Anx TX, Real Estate, 19530305. NARA-SW.
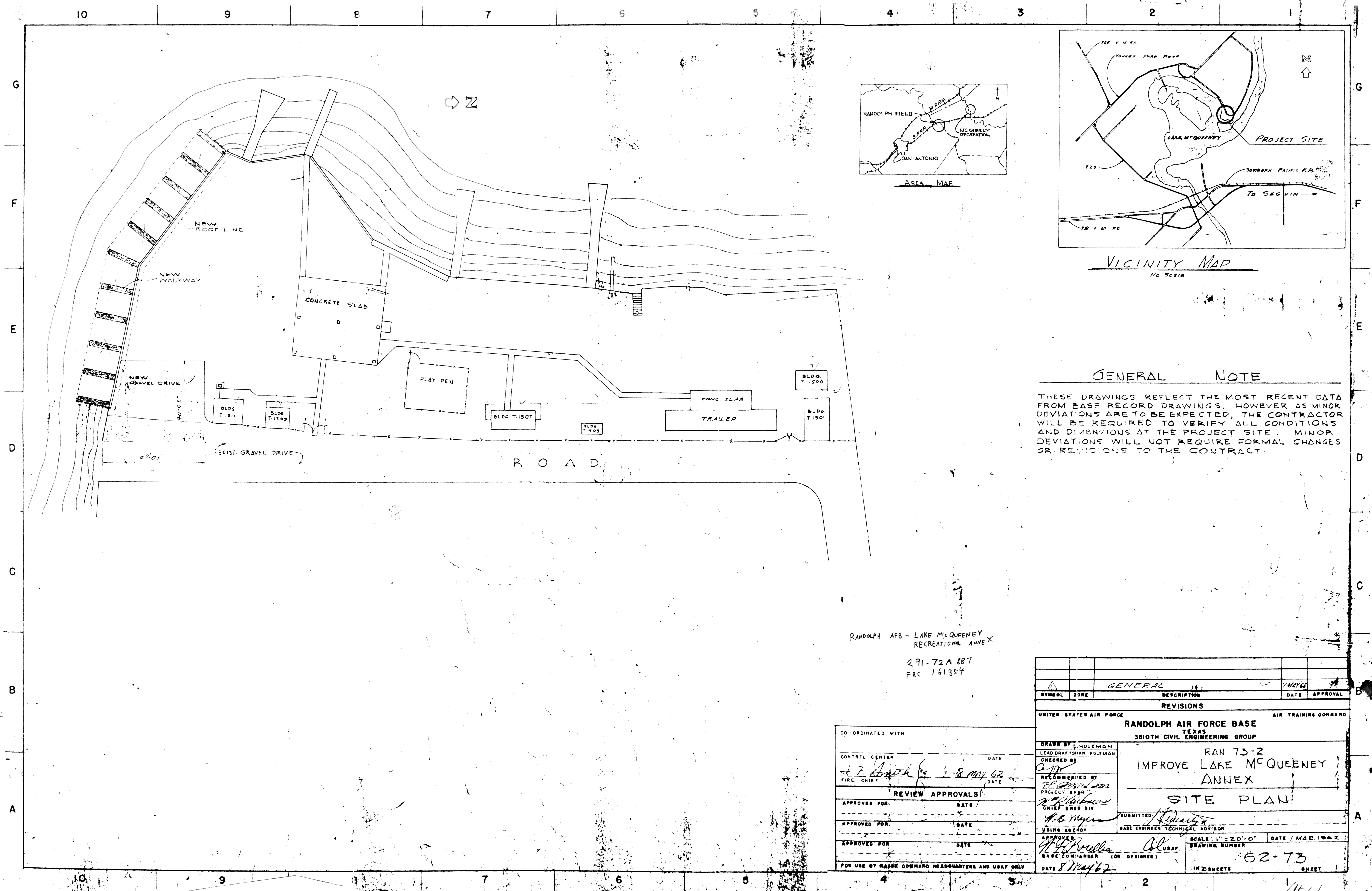
Lake McQueeney Recrn Anx TX, Site Plan, 19620508. NARA-SW.

Lake Texoma Recrn Anx TX, Land Management, 197509. FOIA.

Lane Aux Fld TX, Real Estate, 19450303. FOIA.

Langley AFB VA, Experimental Station, nd. FOIA.

Las Cruces Aux Fld NM, Project Ownership, 19451202. NARA-RM. Added May 2026

Lavernia Radio Beacon Anx TX, Brooks Real Estate, 19440117. NARA-SW.
Lavernia Radio Beacon Anx TX, Randolph Real Estate, 19640129. NARA-SW.

League Davis Aux Fld TX, Real Estate, 19460201. NARA-SW.

Lehigh RBSS OK, Real Estate (Complete), 19710210. FOIA.
Lehigh RBSS OK, Real Estate (Detail 1), 19710210. FOIA.
Lehigh RBSS OK, Real Estate (Detail 2), 19710210. FOIA.
Lehigh RBSS OK, Real Estate (Detail 3), 19710210. FOIA.

Little Rock AFB AR, Annexes Basic Layout, 196003. NARA-SW.

Lordsburg AAFld NM, Real Estate, 19440821. NARA-RM. Added May 2026

Lordsburg POW Camp NM, 3000 Man Camp Building Layout, 19440221. NARA-RM. Added May 2026
Lordsburg POW Camp NM, Real Estate, 19440821. NARA-RM. Added May 2026

Los Lunas AF Range NM, Real Estate, 19580326. NARA-RM. Added May 2026
Los Lunas AF Range NM, Real Estate, 19720608. NARA-RM. Added May 2026

Love Field TX, Real Estate, 19580505. NARA-SW.
Love Field TX, unnamed, nd. NARA-SW.
Love Field and AAF Mod Ctr No. 3 TX, Ownership, 19460701. NARA-SW.

Lufkin AFS TX, Real Estate, 19581128. NARA-SW.

M Mountain Slave Station NM, Real Estate, 19640721. NARA-RM. Added May 2026

MacDill AFB FL, Layout Details, 194001. FOIA.
MacDill AFB FL, Pavement, 19460419. FOIA.
MacDill AFB FL, unnamed, 19410715. FOIA.

Majors Aux Fld 2 TX, Real Estate, 19440328. NARA-SW.

Mansfield AAFld LA, Real Estate, 19440701. NARA-SW.

March Rad Rg Anx CA, unnamed, 19680119. FOIA.

Marfa Rad Rg and Tmtr TX, Real Estate, 19440503. NARA-SW.

Marion Heli Landing Anx TX, Real Estate, 19580224. NARA-SW.

Mason GFA TX, Real Estate, 19580609. NARA-SW.

Matagorda Island AF Rg TX, Ownership, 19460114. NARA-SW.

Matagorda Island Dock Anx TX, Real Estate, 19521029. NARA-SW.

Maxwell AFB AL, Base Plan, 196809. FOIA.

McCamey GFA TX, Real Estate, 19630619. NARA-SW.

McConnell AFB KS, Buildings Group J Location Plan, 195506. FOIA.

Midland AAFld TX, Real Estate, 19490728. NARA-SW.

Midland Radio Range Station TX, Real Estate, 19470507. NARA-SW.

Midland PBR 21 TX, Telephone Pole Line, 19551021. NARA-SW.

Midland North Rg Fire Stn TX, Real Estate, 19440225. NARA-SW.

Milltown Aux Fld AR, Real Estate, 19470612. NARA-SW.
Milltown Aux Fld AR, Surplus Property Disposal Map, 19470513. NARA-SW.

Minden PBR 1 LA, Real Estate, 19490131. FOIA.

Minden PBR 2 LA, Real Estate, 19490131. FOIA.

Minden PBR 3 LA, Real Estate, 19490131. FOIA.

Minden PBR 4 LA, Real Estate, 19490126. FOIA.

Minden PBR 5 LA, Real Estate, 19490126. FOIA.

Montauk AFS NY, Real Estate, 19570731. CoE.

Moody AFB GA, North Runway, 19550612. FOIA.
Moody AFB GA, North Runway, 19551215. FOIA.
Moody AFB GA, Northwest Runway, 19551215. FOIA.
Moody AFB GA, Sewer Layout, nd. FOIA.

Moody Civilian War Hsg Area GA, Water and Sewer Layout, 19420824. FOIA.

Moore Rad Rg Anx TX, Real Estate, 19470528. NARA-SW.

Mountain Home AFB ID, Building Layout, 19650730. FOIA.

Muskogee High Energy Fuel Plant OK, Military Reservation, 19620804 (Center). NARA-SW.
Muskogee High Energy Fuel Plant OK, Military Reservation, 19620804 (Left). NARA-SW.
Muskogee High Energy Fuel Plant OK, Military Reservation, 19620804 (Right). NARA-SW.

Nara Vista PBR No. 1 NM, Real Estate, 19491216. NARA-RM. Added May 2026

Navasota Intermediate Field Auxiliary Field TX, Ownership, 19480922. NARA-SW.

Nebraska Ordnance Plant NE, Reservation Map, 19590415. RP.

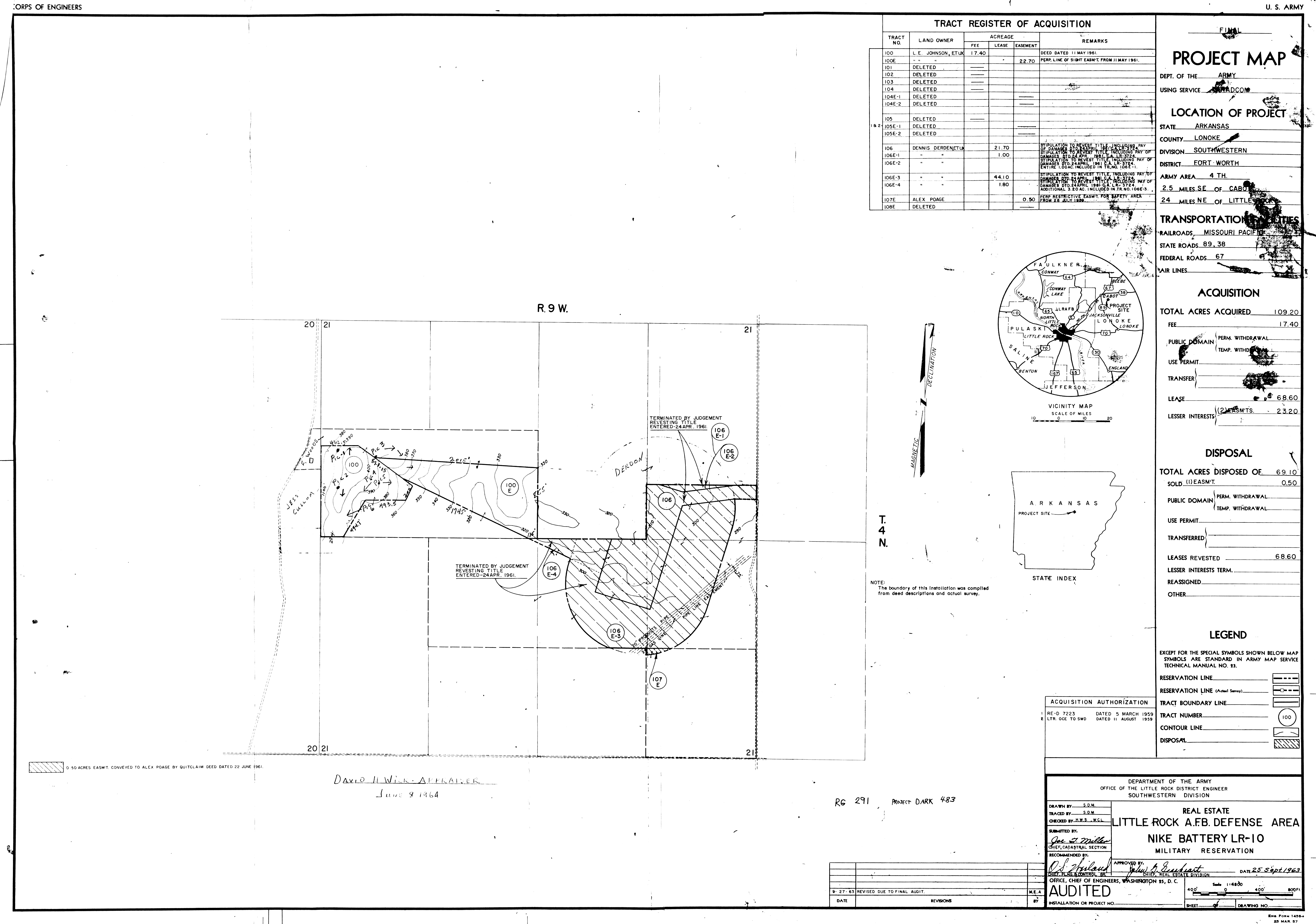
Nike LR-10 AR, Real Estate, 19630927. NARA-SW

Nike WA-10 NM, Real Estate, 19630214. NARA-RM. Added May 2026
Nike WA-10 NM, Real Estate, 19630307. NARA-RM. Added May 2026
Walker AFTAC Anx NM, Real Estate, 19630301. NARA-RM. Added May 2026
Walker AFTAC Anx NM, Real Estate, 19641009. NARA-RM. Added May 2026
Walker AFTAC Anx NM, Real Estate, 19660321. NARA-RM. Added May 2026

Nike WA-50 NM, Location Plan, 19591118. NARA-RM. Added May 2026
Nike WA-50 NM, Real Estate, 19600829. NARA-RM. Added May 2026
Nike WA-50 NM, Real Estate, 19610811. NARA-RM. Added May 2026
Nike WA-50 NM, Real Estate, 19631216. NARA-RM. Added May 2026

Oklahoma City AFS OK, Real Estate, 1955092. NARA-SW.

Pyote AFS TX, Real Estate, 19640318. NARA-SW.

Rattlesnake Springs Rest Camp NM, Area Survey, 19470319. NARA-RM. Added May 2026

Red Butte Instrumentation Site NM, Sketch, 19510511. NARA-RM. Added May 2026

Roe Auxiliary Field AR, Real Estate, 19470429. NARA-SW.

Roswell Aux Fld No. 2 NM, Real Estate, 19450728. NARA-RM. Added May 2026

Roswell Aux Fld No. 3 NM, Map of Segment A, 19421212. NARA-RM. Added May 2026
Roswell Aux Fld No. 3 NM, Real Estate, 19440726. NARA-RM. Added May 2026
Roswell Aux Fld No. 3 NM, Runways and Buildings, 19470206. NARA-RM. Added May 2026

Roswell Aux Fld No. 4 NM, Real Estate, 19440815. NARA-RM. Added May 2026
Roswell Aux Fld No. 4 NM, Real Estate, 19450728. NARA-RM. Added May 2026

Roswell POW Camp NM, Real Estate, 19430224. NARA-RM. Added May 2026
Roswell POW Camp NM, 3000 Man Camp Building Layout, 194303. NARA-RM. Added May 2026
Roswell POW Camp NM, Real Estate, 19451023. NARA-RM. Added May 2026

Sacramento Peak Research Stn NM, Mineral Estate Map, 195310. NARA-RM. Added May 2026
Sacramento Peak Research Stn NM, Project and Ownership Map, nd. NARA-RM. Added May 2026
Sacramento Peak Research Stn NM, Real Estate, 19620806. NARA-RM. Added May 2026

Sandia Base NM, Acquisition of Land, 19480202. NARA-RM. Added May 2026
Sandia Base NM, Acquisition of Land, 19490324. NARA-RM. Added May 2026
Sandia Base NM, High Explosive Testing Areas, 196608. NARA-RM. Added May 2026
Sandia Base NM, Reservation Boundary and Ownership, 19670201. NARA-RM. Added May 2026
Sandia Base NM, Reservation Map, 19690201. NARA-RM. Added May 2026

South Mesa Master Slave Stn NM, Real Estate, 19630711. NARA-RM. Added May 2026

Sweetwater AFS TX, Real Estate, 19640319. NARA-SW.
Sweetwater AFS TX, unnamed, 19690303. NARA-SW.

Sweetwater Family Housing Annex TX, Real Estate, 19590320. NARA-SW.

Tulsa AAFld OK, Real Estat, 19500309. NARA-SW.
Tulsa AAFld OK, unnamed, nd. NARA-SW.

Tulsa Municipal Airport OK, Paving Plan, 19580602. NARA-SW.
Tulsa Municipal Airport OK, Proposed Runway, nd. NARA-SW.

Van Court AF Aux Fld TX, Real Estate, 19520201. FOIA.

Vance AFB OK, Basic Layout, 19550917. FOIA.
Vance AFB OK, Basic Layout, 19650101. FOIA.

Walker AFB NM, RR Spur and RoW Location, 19610814, NARA-RM.

Walker Aux Fld MS, To Accompany Lease, 1941. CoE.

Walker ILS OM Anx NM, Real Estate, 19570821. NARA-RM. Added May 2026

Walker Radio Homing Beacon Site NM, Real Estate, 19570208. NARA-RM. Added May 2026

Walker Recreation Anx NM, Real Estate, 19540203. NARA-RM. Added May 2026
Walker Recreation Anx NM, Plans, 19660321. NARA-RM. Added May 2026
Walker Recreation Anx NM, Real Estate, 19690717. NARA-RM. Added May 2026

Walker Recreation Anx No. 2 NM, Trailer Site, 19660902. NARA-RM. Added May 2026

Walker Small Arms Range Anx NM, Real Estate, 19530903. NARA-RM. Added May 2026
Walker Small Arms Range Anx NM, Real Estate, 19550330. NARA-RM. Added May 2026
Walker Small Arms Range Anx NM, Location of Horizon Lights [bottom], 19560410. NARA-RM. Added May 2026
Walker Small Arms Range Anx NM, Location of Horizon Lights [top], 19560410. NARA-RM. Added May 2026
Walker Small Arms Range Anx NM, Real Estate, 19630803. NARA-RM. Added May 2026
Walker Small Arms Range Anx NM, Real Estate, 19800401. NARA-RM. Added May 2026

Walker TVOR Anx NM, Real Estate, 19720614. NARA-RM. Added May 2026

Wall Aux Fld TX, Real Estate, 19450303. FOIA.

Walnut Ridge AFS AR, Facilities, nd. NARA-SW.
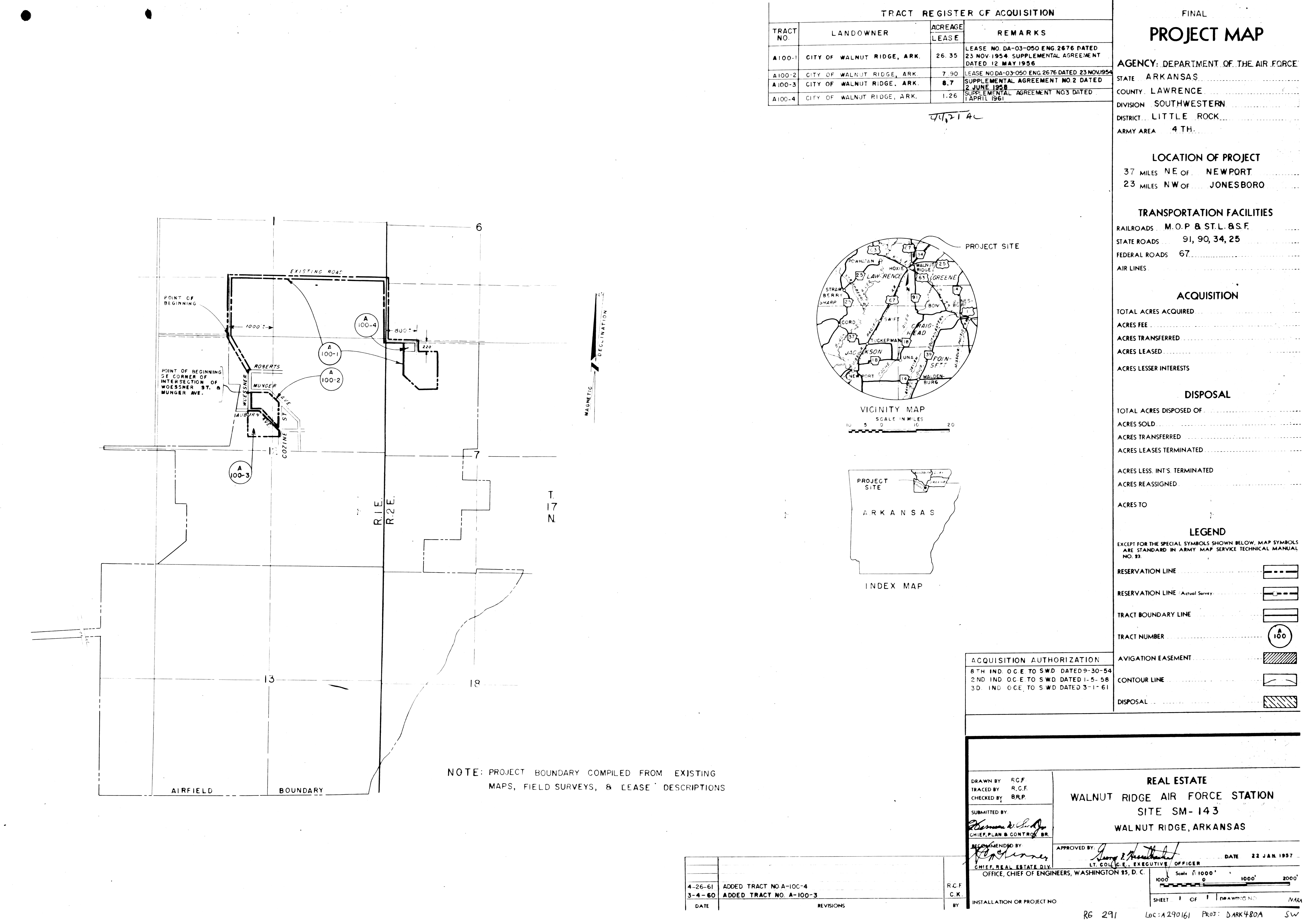
Walnut Ridge AFS AR, Real Estate, 19610426. NARA-SW.

Webb Tng Anx TX, Military Reservation, 19640728. NARA-SW.
Webb Tng Anx TX, Real Estate, 19640728. NARA-SW.

Woodward AAFld OK, Revised Layout, 19440915. NARA-SW.

Yoakum Intermediate Field TX, Ownership, 19480922. NARA-SW.



Updated May 1, 2026



If you like what you find here, please consider making a monetary contribution. Domain name registration, web hosting, and travel cost plenty. You won't find any ads here to annoy you.